2145 GA-9, Dawsonville, GA 30534
Toggle Navigation
Videos
Images
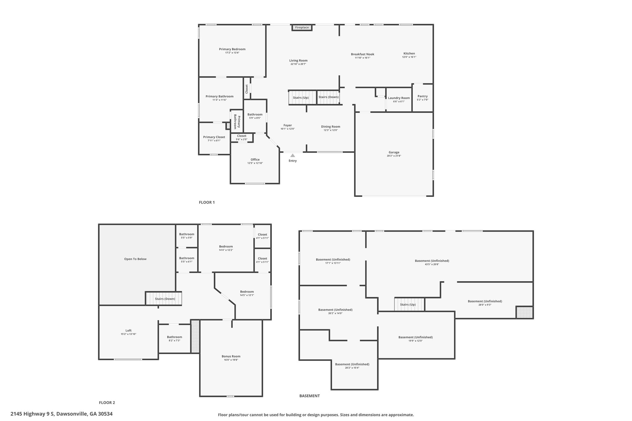
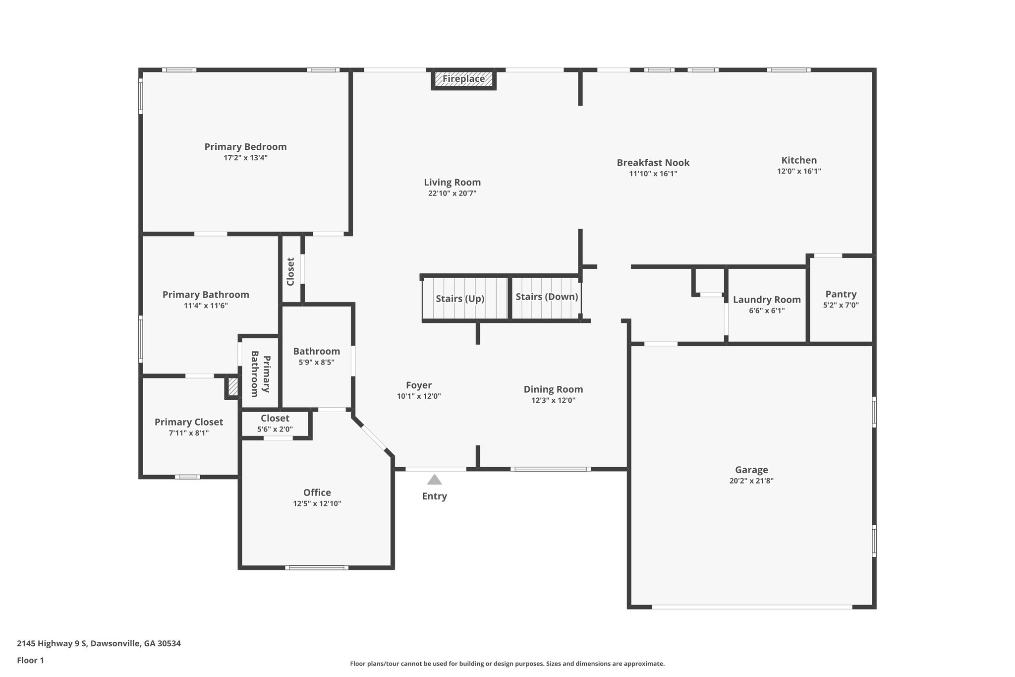
Floor Plans
3D Tour
Map
2145 GA-9
Dawsonville, GA 30534
Scroll to Content
Videos
Images
Slideshow
Photo Grid
Hide
Previous
Next
Show more
Floor Plans
Slideshow
Photo Grid
Hide
Previous
Next
3D Tour