11 Mission Path, Big Canoe, GA 30143
Toggle Navigation
Videos
Images
Floor Plans
3D Tour
Map
11 Mission Path
Big Canoe, GA 30143
Scroll to Content
Videos
Images
Slideshow
Photo Grid
Hide
Previous
Next
Show more
Floor Plans
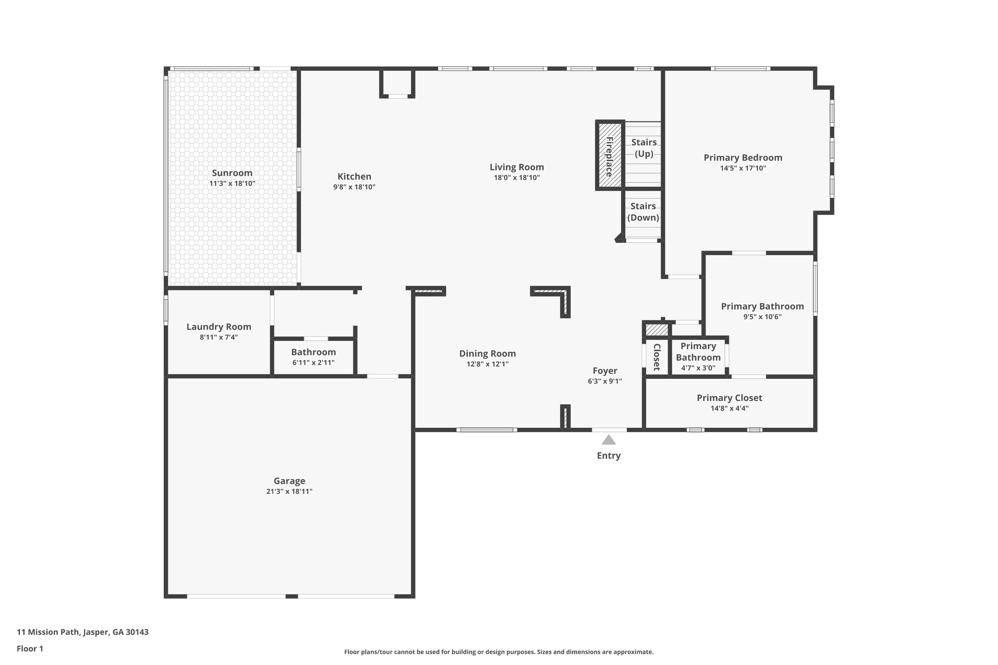
Main Level
Upper Level
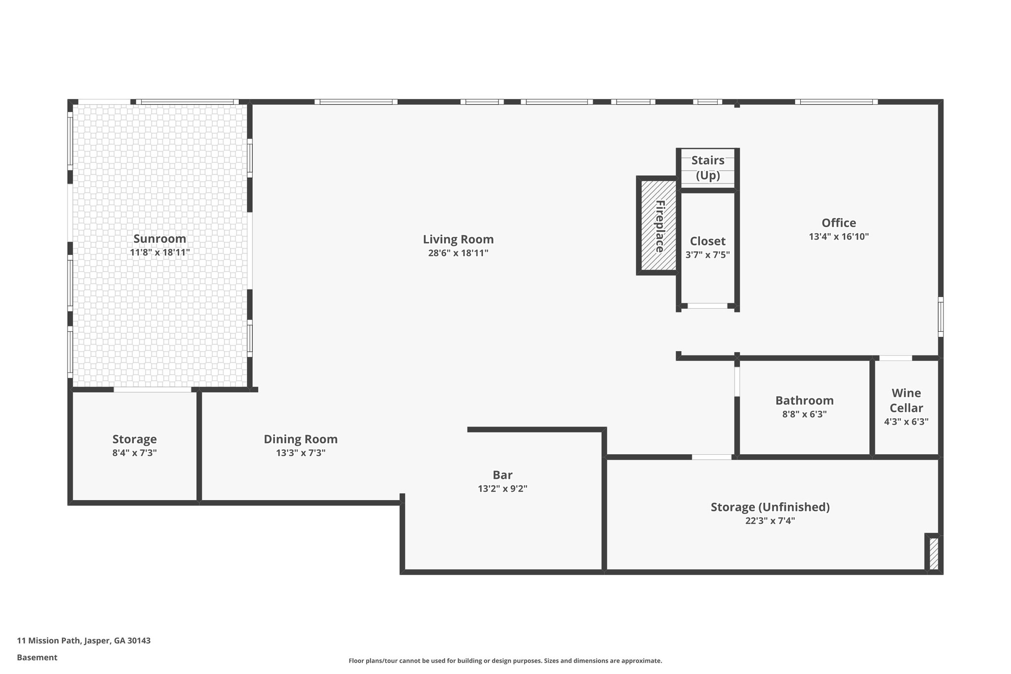
Lower Level
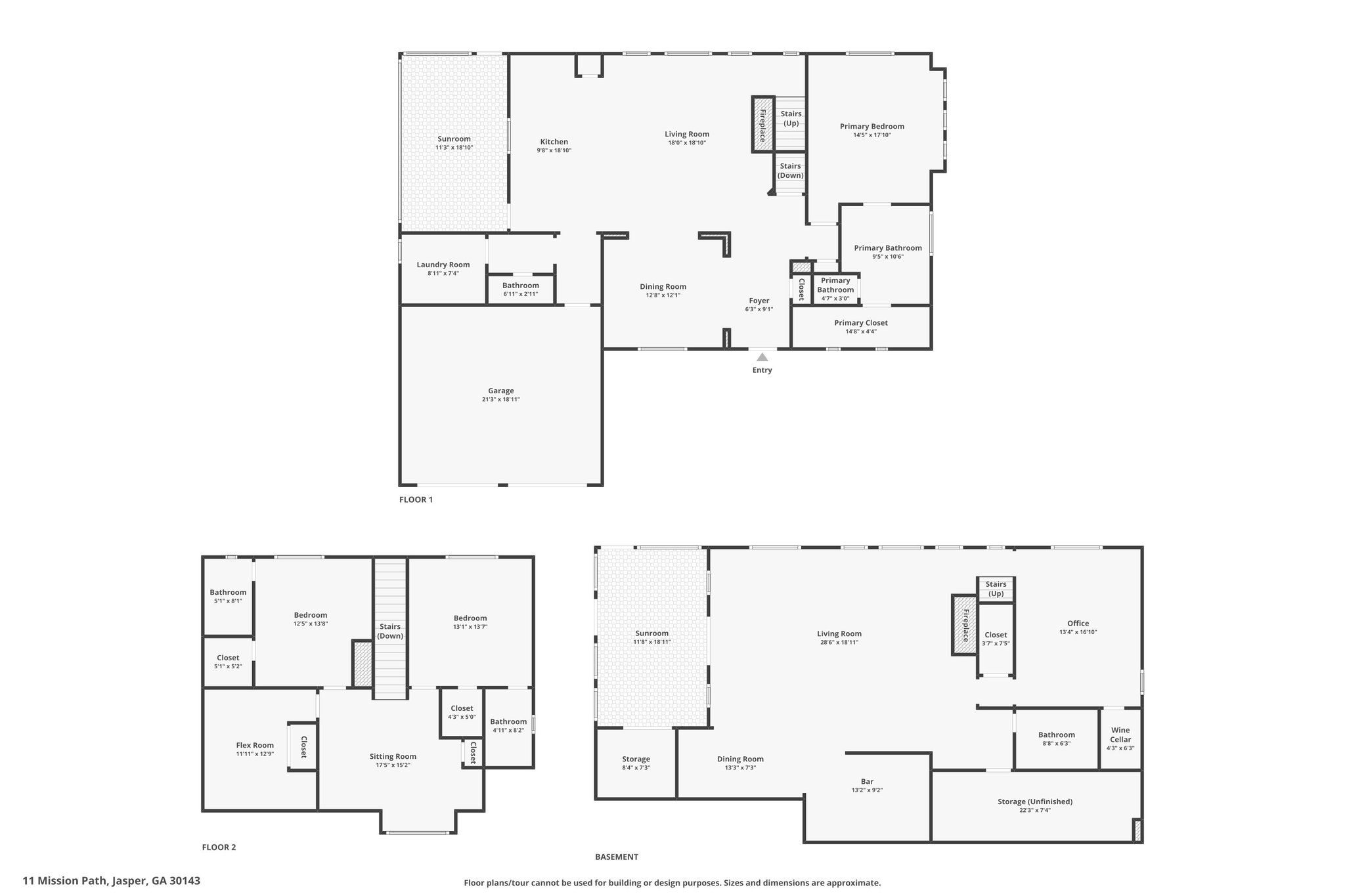
Combined
Slideshow
Photo Grid
Hide
Previous
Next
3D Tour